SCHWEITZER












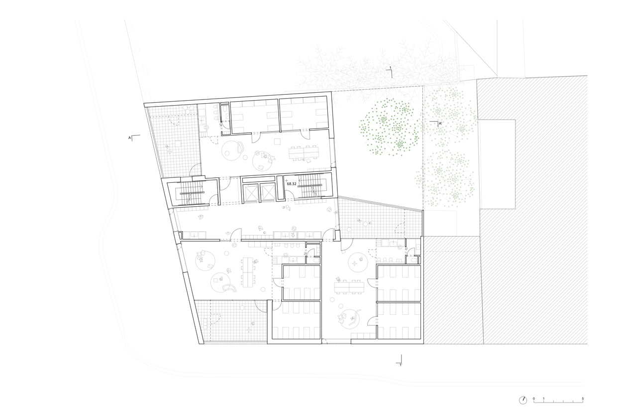
Daycare and commercial spaces in Brussels
Location: Brussels, Belgium
Client: Municipality of Berchem-Sainte-Agathe
In collaboration with: Atelier Julien Boidot
Structural and Service engineer: JZH
Acoustic consultant: ASM
Landscape: Carbonifère
Competition: 2025
Location: Brussels, Belgium
Client: Municipality of Berchem-Sainte-Agathe
In collaboration with: Atelier Julien Boidot
Structural and Service engineer: JZH
Acoustic consultant: ASM
Landscape: Carbonifère
Competition: 2025