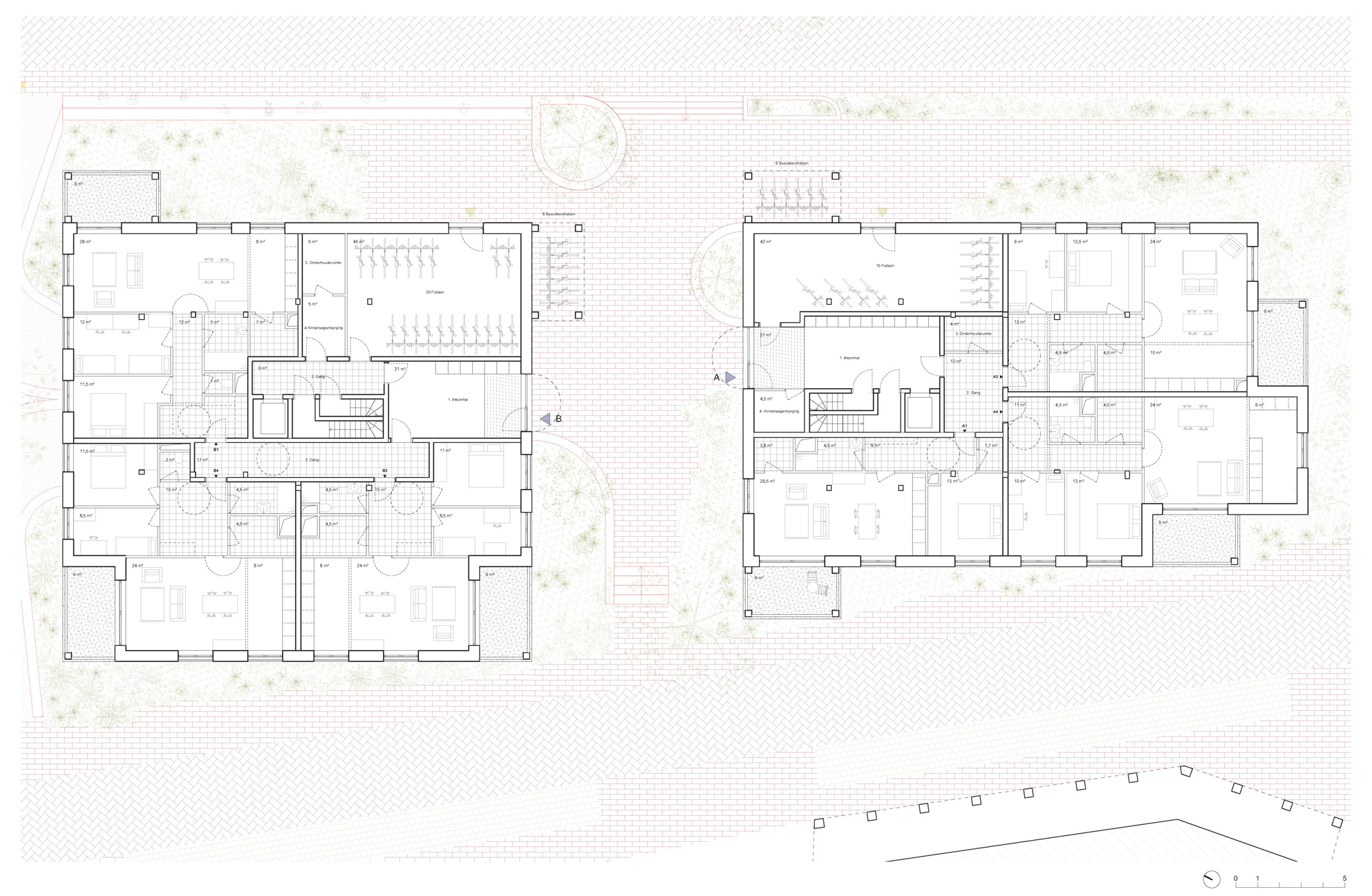
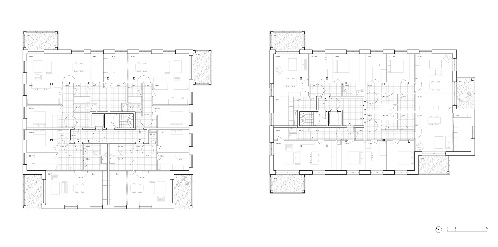
PLEIN











Renovation of a social housing complex with 42 apartments in the historic city center of Kortrijk.
Location: Kortrijk, Belgium
Client: Sw+
In collaboration with: Vers.A
Structural engineer: BAS
Service engineer: Tech3
Acoustical engineer: M-gineers
Facade consultant: Gevelinzicht
Landscape design: Studio Thomas Willemse
Built surface: 4.750 m²
Competition: 2024 (1st laureate)
Status: Predesign
Location: Kortrijk, Belgium
Client: Sw+
In collaboration with: Vers.A
Structural engineer: BAS
Service engineer: Tech3
Acoustical engineer: M-gineers
Facade consultant: Gevelinzicht
Landscape design: Studio Thomas Willemse
Built surface: 4.750 m²
Competition: 2024 (1st laureate)
Status: Predesign